KI-KICSODA 3 - MEGKERÜLHETETLEN SZAKEMBEREK
A statikus, az épületgépész tervező és az épületvillamossági mérnök
2024. 07. 11. grafitműterembelsőépítészettervezésműemlékvédelemépítészetstatikusépületgépészépületvillamossági szakember
Egyik előző posztunkban az építész-belsőépítész-lakberendező szakterületét, felelősségét jártuk körbe. Azonban egy épület teljes körű tervezéséhez további specifikus tudású szakemberek összehangolt munkájára is szükség van. Ma három olyan szaktervező munkáját mutatjuk be, akik szinte mindegyik építészeti projekt résztvevői. Véleményük, előírásaik megkérdőjelezhetetlenek. Szakvéleményükért felelősséget vállalnak. Az életünket védik. Szó szerint.
STATIKUS
Más néven szerkezettervező mérnök. Feladata, hogy biztosítsa az épületek és más építmények szerkezeti stabilitását, biztonságát és tartósságát. Nem kis feladványa szigorú szabványokhoz (pl. EUROCODE) igazodó számításaik alapján készült statikus terveiket az építészeti koncepcióval összhangba hozni, de az ő feladata az építész, belsőépítész elképzeléseit a lehetőségekhez igazítani. Az alapozástól (mélyépítési és klasszikus alapozás) a tartószerkezeteken, áthidalásokon, födémeken át a tetőig, minden elem biztonságos, szilárd létezését ő határozza meg. A statikus felel az épületek hosszútávú stabilitásáért akár extrém körülmények között is (szél, hó, tűz, stb.) A teljes épület statikai-szerkezeti modelljét elkészít. Számításai alapján már a tervezés korai szakaszában vétót mondhat az építész, belsőépítész egyes ötleteire.
Épületek felújítása, átalakítása során szintén nélkülözhetetlen. Ha egy meglévő épület szerkezetét érintő átalakítást vagy bővítést terveznek, vagy építményben szerkezeti meghibásodások jelentkeznek, például repedések, süllyedések, vagy más szerkezeti problémák, statikus tervező bevonása szükséges a hiba okainak felderítéséhez és a javítási megoldások kidolgozásához. Maga a felújítás szükségességét is sokszor az ő szakvéleménye alapján mondják ki.
Bizonyos esetekben a kivitelezés során tervezői művezetést is végez, de munkájára alapvetően az építészeti projekt tervezési fázisaiban van szükség.

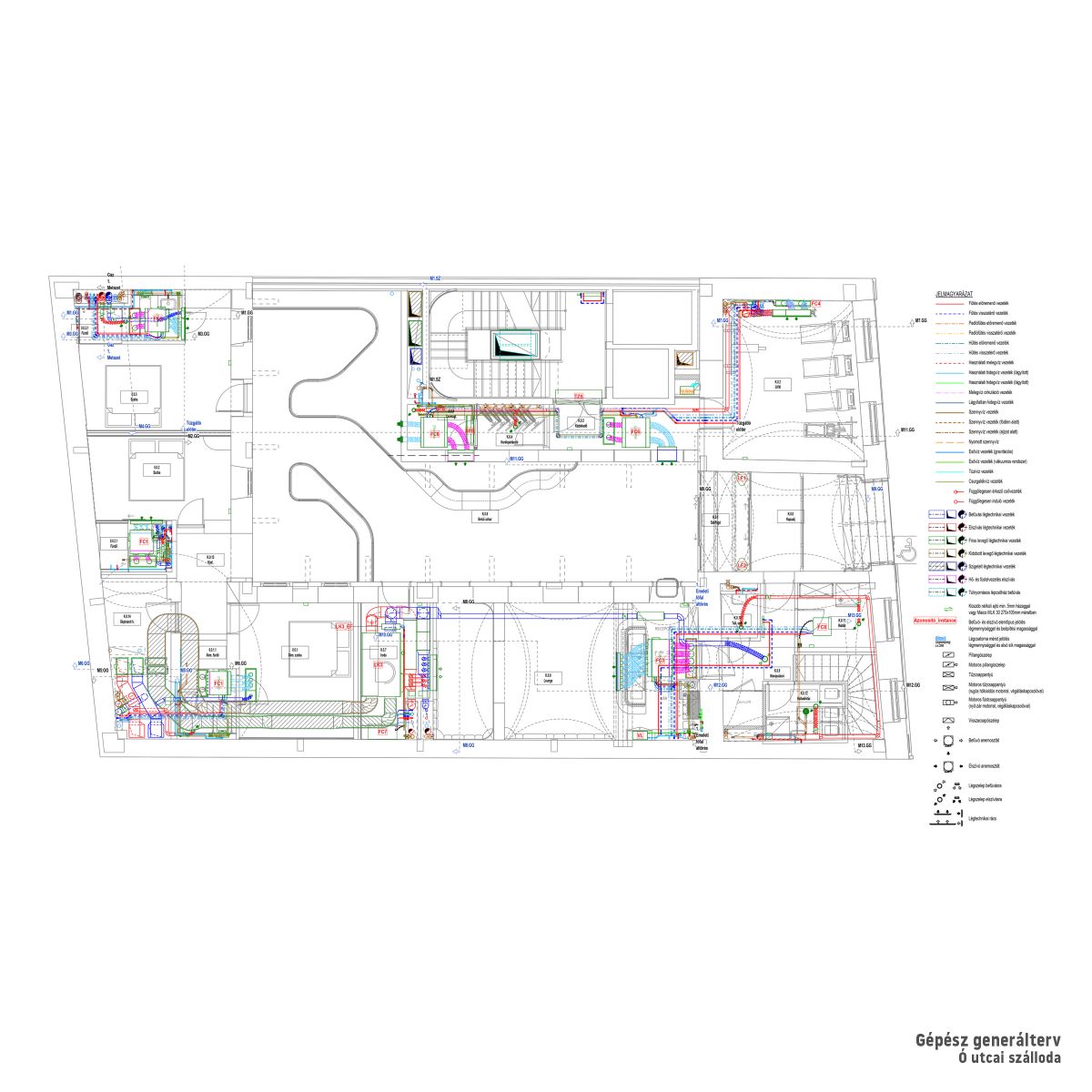
ÉPÜLETGÉPÉSZ TERVEZŐ
Az épületgépész a modern épületek tervezésének nélkülözhetetlen szereplője. Szakértelme biztosítja, hogy az épületek energiatakarékosak, komfortosak ugyanakkor jól használhatók legyenek. Az energiahatékony fűtés-, hűtés- és szellőző rendszerek és korszerű hőszigetelés tervezésével csökkentik az épületek energiafogyasztását és üzemeltetési költségeit.
Ők tervezik meg a víz- szennyvíz és ha van gáz vezetékek az előírásoknak megfelelő, és a megrendelő igényeihez igazodó, az építészeti koncepcióhoz illeszkedő, optimális helyét, méretezését, illetve azt, hogy ezeket hogy tudják úgy elhelyezni, hogy egyrészt lehetőség szerint ne legyen látható, funkcionáljon, ugyanakkor viszonylag könnyen lehessen karbantartani, javítani. Hatáskörük a tervezési terület határáig van, a meglévő közművek rákötésére. Közművek új bekötését nem tervezik.
Mindemellett az épületgépész tervező segítséget nyújthat az épületenergetikai tanúsítványok készítésekor is, amelyek elengedhetetlenek az ingatlan engedélyezéskor, eladásakor, illetve használatba vételkor.

ÉPÜLETVILLAMOSSÁGI TERVEZŐ
Egy újabb kihagyhatatlan szakember. Mindannyian megéltük már, hogy levágott a biztosíték, vagy túlfeszültség miatt tönkrementek elektronikai berendezéseink. De sajnos gyakran visszatérő hír az elektromos tűz miatt kiégett ingatlan. Szóval jelenléte maximálisan indokolt egy építőipari projektben.
Leegyszerűsítve két fő területen az erősáramú rendszerek és a gyengeáramú rendszerek területén terveznek.
Az erős áramú rendszerek (az elektromos áram munkavégzési és energiaátviteli felhasználási területe) tervében meghatározza egy épületben az építészeti, belsőépítészeti tervek alapján várható áramfogyasztásához a megfelelően a mérő és biztonsági berendezéseket, a fő- és mellékvezetékek méretét, szükséges elosztók helyét és méretét, kialakítandó világítást kapcsolók és dugaljak helyének kijelölésével, valamint az ezekhez vezető kábelezés nyomvonalát az elosztóktól. Ők tervezik meg a világítási rendszereket, homlokzatvilágítást, egyes épületek díszkivilágítását is. De foglalkoznak a külső és belső villámvédelemmel.
A gyengeáramú rendszerek megtervezéséhez tartozik a épületfelügyeleti és riasztórendszerek, beléptető és behatolásvédelmi rendszerek, esetleges kamerarendszerek kiépítésének terve, tűzjelző rendszerek, a kaputelefon, távnyitók, automatizálás, stb. Az épületvillamossági tervező az okosházrendszerek tervezésében is közreműködik más szakági tervezőkkel együtt dolgozva.

Fontos hangsúlyozni, hogy a különböző szakágak együtt, összehangoltan dolgoznak, bizonyos esetekben speciális szakértők - ezekre később kitérünk - munkáját is igénybe véve, ami a pontos tervezési program ismeretében előre látható.