Szigetszentmiklósi református általános iskola pályázat

 

A Dunamelléki Református Egyházkerület megbízásából kiírt pályázat célja egy, a kor igényeinek megfelelő és a református értékrendet képviselő általános iskola koncepciójának megalkotása Szigetszentmiklós ‘Bucka’ negyedében.
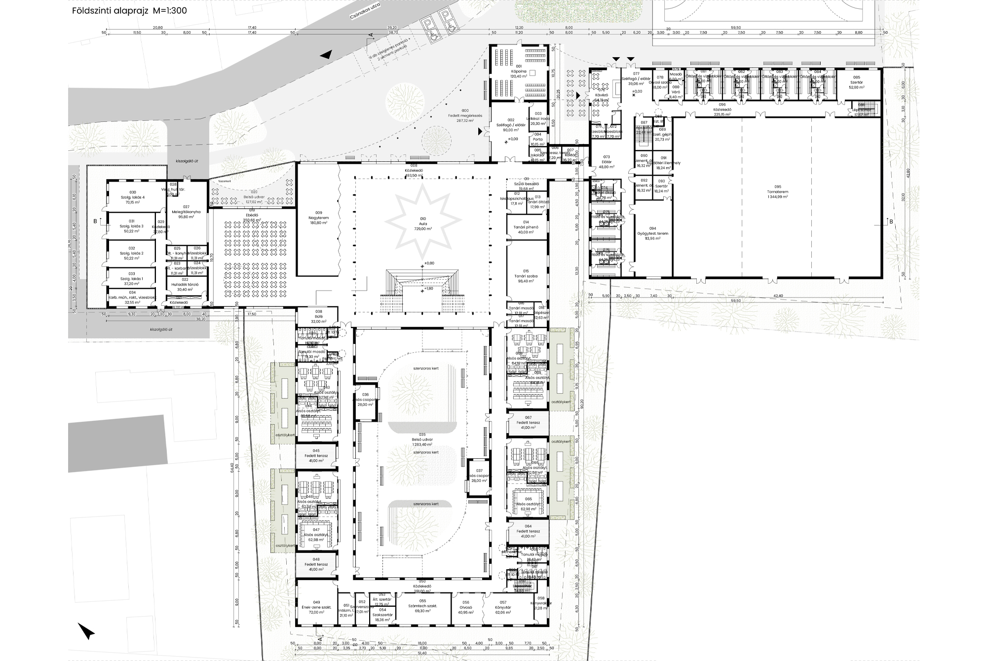
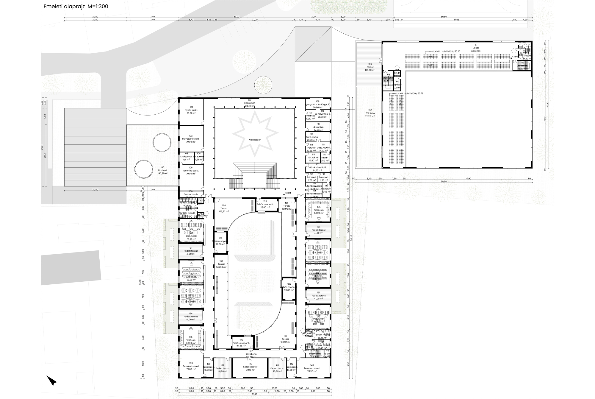
Tervezésünk alapelve a református szemlélet karakterjegyeinek - mint közösségi lét, egyszerűség és átteinthetőség - építészeti leképezése. Ennek megfelelően hangsúlyban vannak a közösségi terek, amelyekben meghatározó a természetes fény szerepe. Kiemelten kezeltük a kül- és beltér kapcsolatát, illetve a természet közelségét is, a belső világ kialakításánál pedig az otthonosságra és a zöldterületekkel való minél közvetlenebb kapcsolatra fektettük a hangsúlyt. Az építészeti koncepciót erősítik az eltérő hangulatú udvarok, területek.
A tervezett telepítésben célunk volt a különböző funkciók elszeparálása, amelyek mégis egy egységet tudnak alkotni. Az így összeállított téri világ központi eleme a közösségi tér (aula), kert- és udvar kapcsolataival egy összetett organikus rendszerként működik, amelynek önálló identitású terei és azok eltérő kapcsolati minősége adja a teljes egészet.
 

TELJES PROJEKTNÉV: Szigetszentmiklósi Református Általános Iskola tervpályázat
HELYSZÍN: Szigetszentmiklós
MEGRENDELŐ/ÉPÍTTETŐ: Dunamelléki Református Egyházkerület
TERVEZÉS IDEJE: 2024.

VEZETŐ TERVEZŐ: Varga Piroska DLA
ÉPÍTÉSZ MUNKATÁRS: Benesóczky Zsófia, Csik Fanni, Horváth Marcell Gergely, Rudolf Blanka Ivett, Zakor Fruzsina
Tűzvédelem: Agócs Rita
Közlekedés: Pach Dániel