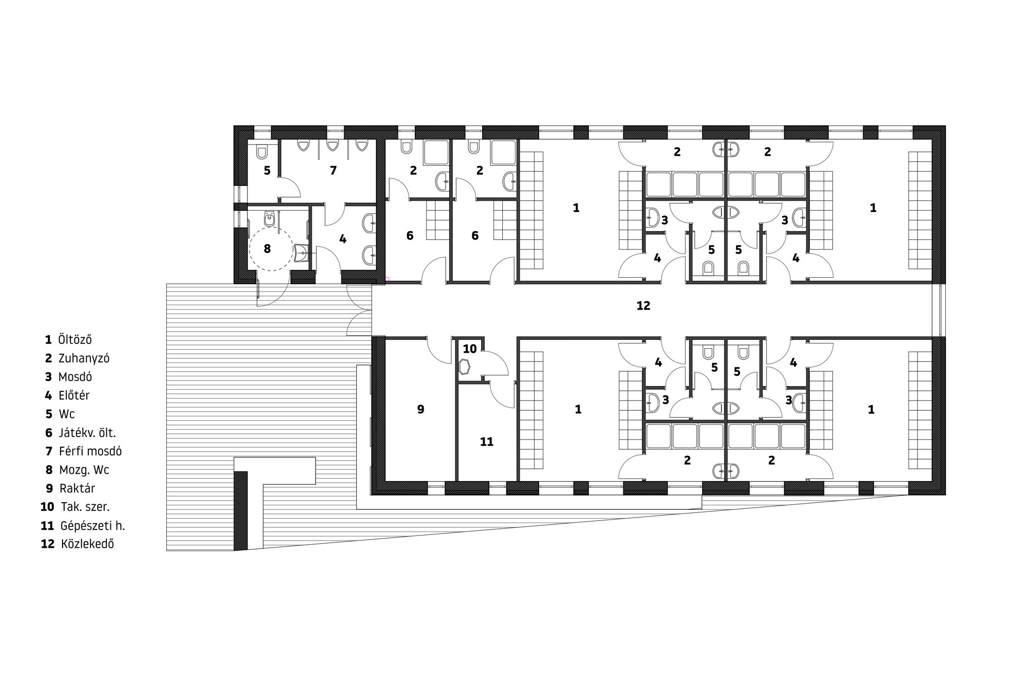
MLSZ öltöző típusterv

 

Országszerte több helyszínre adaptálható amatőr labdarúgó öltözőépület tervezése Siffel Gáborral (Hélis Kft.) közösen. Az épületekben öltözők, vizesblokkok, közösségi helyiség, a központi térbe és a szabadba is kiszolgáló büféhelyiség, valamint raktárak célszerű kialakítása volt a feladat. A terveket fejlesztési pályázataihoz jelenleg is mintatervként használja Magyar Labdarúgó Szövetség.

TELJES PROJEKTNÉV: Labdarúgó létesítmény fejlesztés, öltözőépület belsőépítészeti tervezése
ÉPÍTTETŐ: Magyar Labdarúgó Szövetség
TERVEZÉS IDEJE: 2016-2017
MEGVALÓSULÁS IDEJE: 2018

VEZETŐ TERVEZŐ: Siffer Gábor (Hélis Kft.), Varga Piroska DLA
ÉPÍTÉSZ MUNKATÁRS: Pentaller Dorottya
GENERÁLTERVEZŐ: E-Sports Management Kft.
GRAFIKAI UTÓMUNKA: Bitter Fruzsina