LAKÁS belsőépítészeti ÁTALAKÍTÁSA, kRÚDY UTCA

 

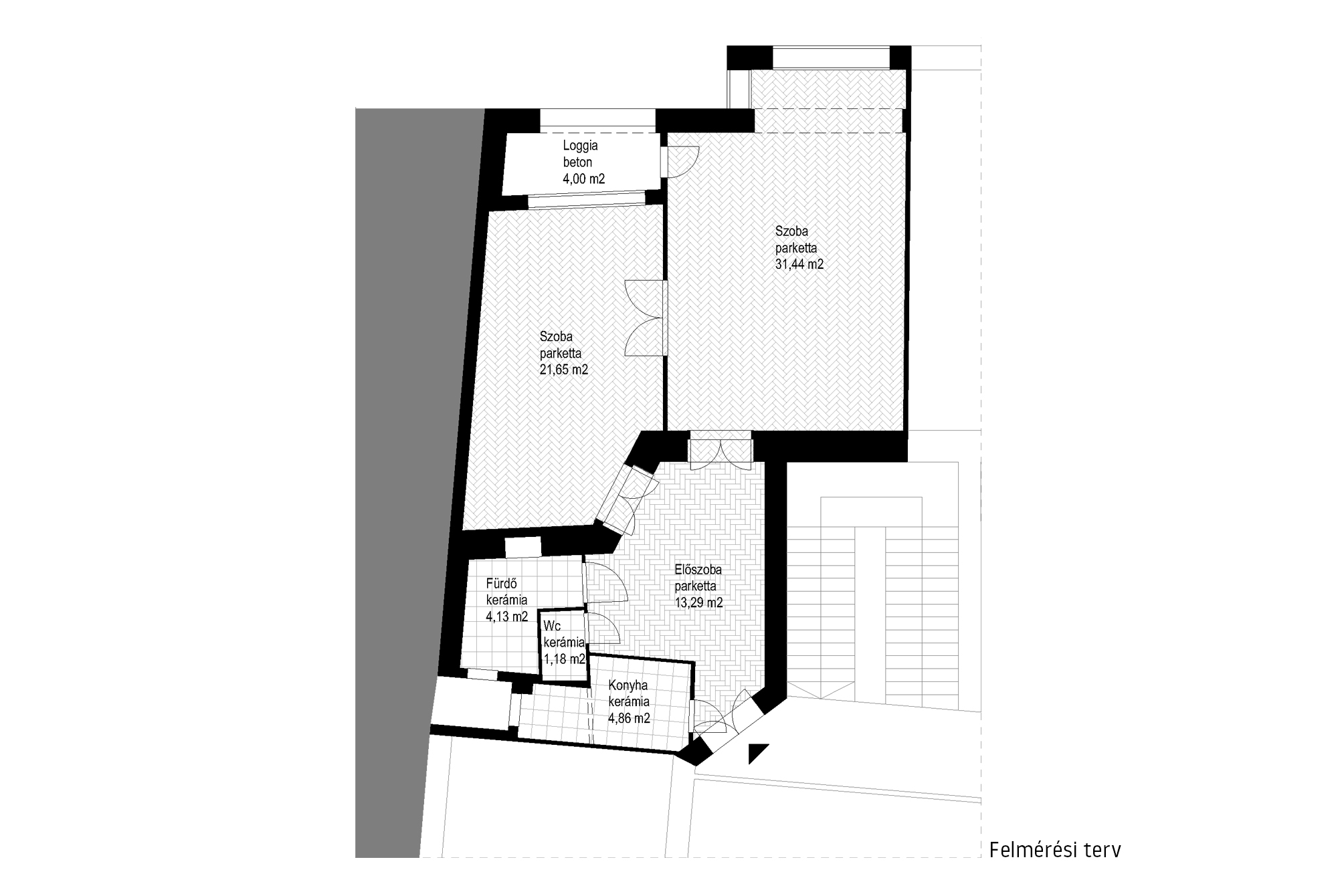
Budapest belvárosában egy lakásátalakítást terveztünk. A feladat egy leválasztott lakásban kialakított kényszer konyha, vizesblokk és hall korszerű felújítása és térbeli áttervezése volt. A felújításban érintett részekbe viszonylag kevés természetes fény jutott be, ezért a belsőépítészeti tervek készítésénél törekedtünk a terek világosítására és vizuális megnövelésére: a burkolatok és bútorok anyagának kiválasztásakor a világos, természetes tónusokat részesítettük előnyben.
A lakás falai kevés helyen merőlegesek egymásra, ezért a maximális térkihasználás és egységes megjelenés érdekében, a belsőépítészeti tervezés részeként egyedi bútorterveket is készítettünk.
 

TELJES PROJEKTNÉV: Lakás belsőépítészeti átalakítása, Krúdy utca
HELYSZÍN: Budapest
MEGRENDELŐ: magánszemély
TERVEZÉS IDEJE: 2024
megvalósulás IDEJE: 2025

VEZETŐ TERVEZŐ: Varga Piroska DLA
ÉPÍTÉSZ MUNKATÁRS: Csik Fanni
ÉPÍTÉSZ MUNKATÁRS: Rudolf Blanka Ivett
ÉPÍTÉSZ MUNKATÁRS: Benesóczky Zsófia
kivitelező: Török Balázs
ASZTALOS: Veres Ábel