Családi ház, Nagytétény

 

A nagytétényi ház története az 1900-as évek elejére nyúlik vissza. Az idők során tornáccal és több melléképülettel bővítették. 
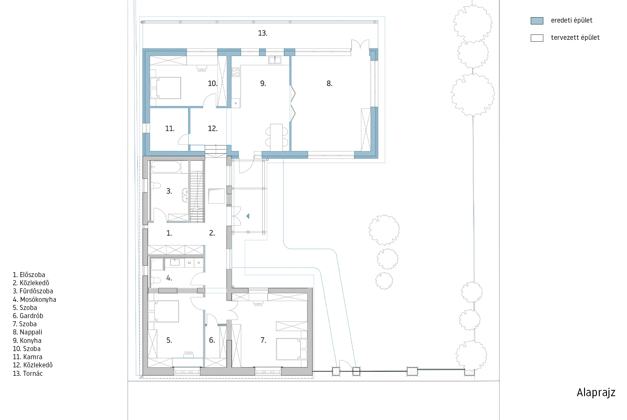
A megrendelő kérésére a 100 éves épület megóvása és bővítése volt a cél, így a tervezést különféle állagvédelmi vizsgálatok előzték meg, min például faanyagvédelem, falkutatás, alapfeltárás és szerkezeti vizsgálatok. Tervezési koncepciónk az utólagos hozzáépítések elbontása és egy új épületrész hozzáadása, amely a hátsó kertre néz. Az így létrejött U alakú épület egy belső udvart hoz létre, amely a megérkezés helye, illetve nagyobb intimitást biztosít a hátsó kert számára. Az új épületrészben került elhelyezésre a nappali, ami a kert felé egy tornáccal képez átmenetet.

TELJES PROJEKTNÉV: 100 éves családi ház felújítása és bővítése
HELYSZÍN: Budapest
ÉPÍTTETŐ: magánszemély
TERVEZÉS IDEJE: 2023-2024

VEZETŐ TERVEZŐ: Varga Piroska DLA
ÉPÍTÉSZ MUNKATÁRS: Torma Sára, Rudolf Blanka Ivett
STATIKA: Laczkovics János
elektromosság: Sándor Dávid
ÉPÜLETgépészet: Vanya Tamás
Faanyagvédelem: ​​​​​Fazekas Péter
FOTÓ: Laczkovics János, Grafit Műterem